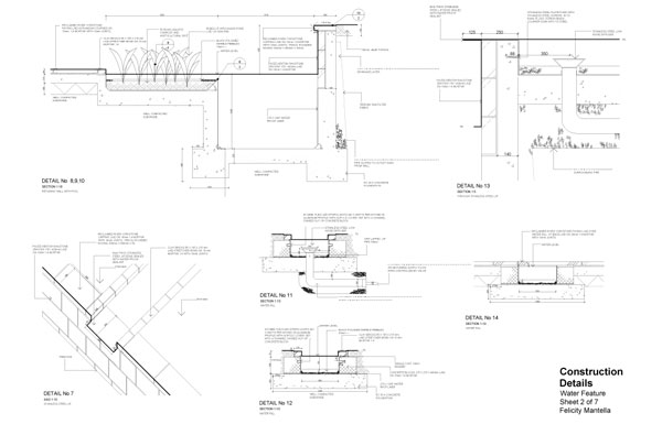
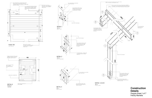
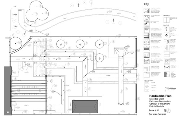
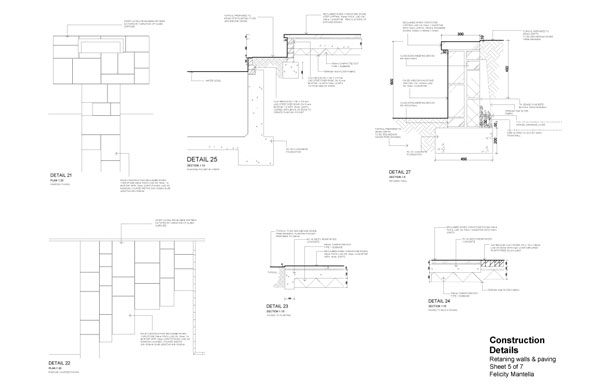
Detailing

After we have discussed the sketch designs with the client we will work towards a set of completed design including construction drawings, sections showing level changes, planting plans and schedules.

These final set of drawings should present all the information needed to construct the garden or landscape.